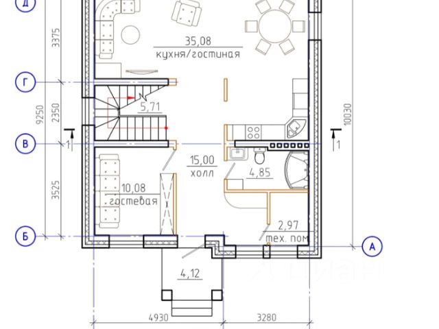
Дуплекс в КП Катуар, 24 км от мкад по Дмитровскому шоссе, жд станция Катуар, самое выгодное по земле предложение. Рядом международный конно-спортивный комплекс Максима. кафе, ресторан, фитнес, салон красоты, магазины. КПП, Охрана 24/7, Все коммуникации - центральные( волоснабжение, канализация, электроснабжение, магистральный газ)!!!!! Дуплекс ( 2 егрн на дом 120м2 и земью-6,8 соток, у остальных -4 сотки!!! только в первой очереди были такие большие участки с просторным видом без соседей!!!) 120 м2, 1 этаж: прихожая, санузел, ностевая спальня/ кабинет, кухня-гостиная со своим выходом на участок, тех помещение. 2 этаж: три спальни( можно сделать три), одна имеет свой кабинет/ гардеробную/ санузел дополнительно, санузел. Дом отапливается Газовым котлом, подключен, работает. Собственником сделано: отопление, возведены стены, разводка воды, электрики, гребенки, вырыт бассейн на участке. Покупался у застройщика за наличный расчет, без обременений, мат капиталов и прочих обременений. жд станция Катуар, можно пешком или 5 мин на машине, новая муниципальная шикарная школа, дет сад в соседнем кп, пункты выдачи в Катуаре, конно-спортивный клуб Максима (проводятся международные соревнования), с рестораном, кафе, салоном красоты, магазином, гостиницей. рядом два пруда, один из них для рыбалки, чуть дальше по Дмитровке-горнолыжки, торговые центры, рестораны, канал им Москвы, водоемы, яхт-клубы! Никто не прописан, 1 взрослый собственник, свободная продажа. Звоните- покажу! если Вы искали: купить дом в Подмосковье, дом на дмитровке, таун в Катуар, аля катуар, кп катуар, дуплекс в аля катуар, дом у москвы, дом близко от москвы, дом в лобне, долгопрудном, некрасовском, в катуаре, купить дом у горнолыжки.













































































