Арт. 58263654 Вашему вниманию предлагается трехэтажный дом c частичной отделкой расположенный в коттеджном поселке "Новосходненский" в 12 км от МКАД по по Ленинградскому шоссе. Площадь дома: 1000 кв.м. Стены (толщина 60 см) выполнены из кирпича. Фундамент: бетон. Кровля - черепица Braas ( пр-во Германия). Внешняя отделка: клинкерная плитка. К дому подведены и разведены все центральные коммуникации (водопровод, канализация, газ, электричество - 15 кВт). Дом круглогодично отапливается посредством газового котла. В доме есть приточно - вытяжная вентиляция. Проведен оптоволоконный интернет. По первому этажу разведены теплые полы. Просторные помещения свободной планировки и высокие потолки на первом и цокольном этажах позволяют реализовать самые смелые желания в интерьере. Панорамные окна являются источником естественного освещения, создают светлую и уютную атмосферу.
В цокольном этаже оборудована котельная. Разведены все коммуникации для установки бассейна, есть сауна, хамам. Хорошая шумоизоляция позволяет оборудовать в цокольном этаже кинотеатр или караоке, не потревожив при этом соседей.
Из холла второго этажа есть выход на террасу, откуда открываются живописные виды на поселок и лес. К дому примыкает гараж (площадь 137 кв м). На участке правильной формы сделан дренаж.
Благодаря свободным планировкам, дом можно рассматривать в качестве помещения под бизнес.
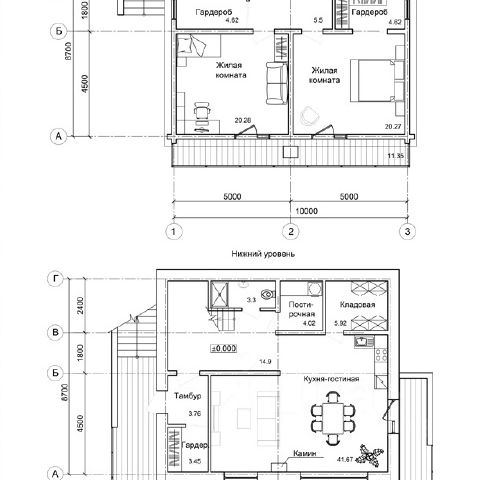
Планировка
Цокольный этаж: свободная планировка, санузел, сауна;
Первый этаж: прихожая, гостиная, столовая, спальня, санузел;
Второй этаж: холл с выходом на террасу, помещение свободного назначения, спальня, спальня с санузлом, спальня, спальня с санузлом, санузел.
Охраняемый коттеджный поселок "Новосходненский" расположен на поляне, в сосновом лесу, в 12 км от МКАД по Ленинградскому или Новосходненскому шоссе, вблизи деревни Голиково и реки Сходня.
В 3-х км от поселка находится остановка, откуда на автобусе можно за 30 минут добраться до м. Беломорская, за 40 минут- до м. Речной вокзал. В 4-х км - железнодорожная станция Сходня, откуда можно за 30 минут доехать до станции метро Петровско-Разумовская, за 45 минут- до метро Комсомольская, Ленинградского, Казанского и Ярославского вокзалов. К концу 2023 года планируется открытие линии наземного метро МЦД - 3 (Ленинградско-Казанский), которая соединит города Зеленоград и Раменское, а также станции метро Замоскворецкой, Калужско-Рижской, Серпуховско-Темирязевской, Солнцевско- Калининской и Таганско-Краснопресненской линий .
В КП Новосходненский всего 30 домов. Поселок относится к клубным комплексам Солнечногорского района. Здесь есть все возможности для активного отдыха (водный, лыжный спорт, рыбалка, конные прогулки). Территория КП Новосходненский полностью освещена. Территория огорожена, организована въездная группа со шлагбаумом, установлено видеонаблюдние.
В доступности инфраструктура микрорайона Сходня: В 500 м - отель Art Village Club, где гостям предлагаются такие услуги как фитнес-центр Wellness & SPA с двумя бассейнами, ресторан La Ferma, пляжный волейбол, настольный теннис, прокат оборудования для водных видов спорта, катание на лошадях, йога, бадминтон, волейбол , ледовый каток, авквааэробика, клуб скандинавской ходьбы и т.д. Детский сад, школа - в 1,5 км. В радиусе 2,5 км: супермаркеты Перекресток, Супер Лента, Светофор. Батутный спортивно-развлекательный центр GO-Jump- в 2,5 км. Горнолыжная База "Родина" - в 3,5 км. Сходненская Городская больница - в 3,6 км. Храм Матроны Московской в Сходне - в 4 км. Гипермаркет МЕГА-Химки - в 9 км. Строительный гипермаркет Леруа Мерлен - в 11 км.