С мебелью
Только на Циан
Проверено в Росреестре
Лобня
30 минут на транспорте
5 999 000 ₽
126 029 ₽/м²
ПРОДАМ:
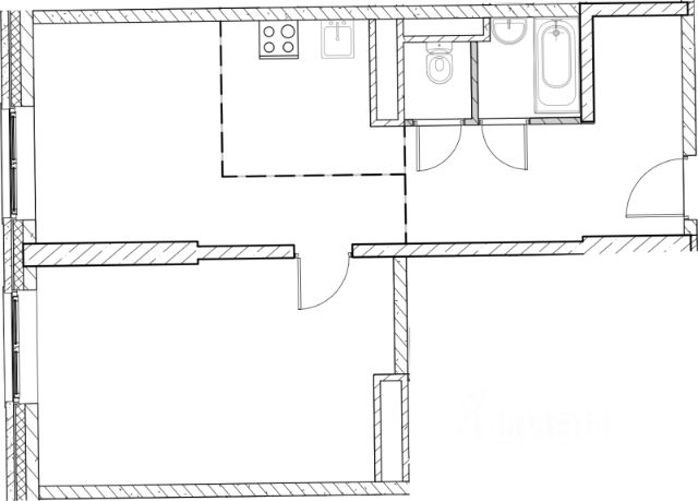
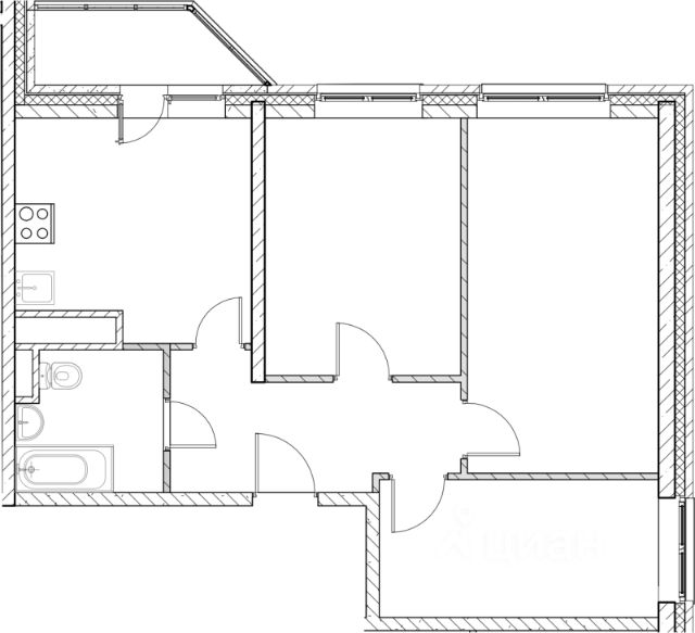
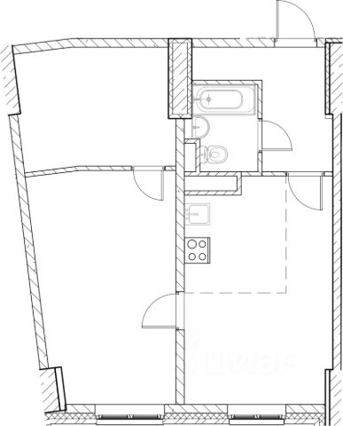
2 к кв, улучшенной планировки (квартира-распашонка (окна на 2 стороны света), просторная кухня (10 м2), большой коридор и раздельный сан.узел в пгт Некрасовский (Дмитровский г.о. МО).
Расстояние на автомобиле до МКАД 22 км, удобный выезд на Дмитровское шоссе.
До МЦД Лобня 15 мин (на электричке в сторону Савеловского вокзала), до ближайшей станции м. Лианозово 30 мин на электричке.
В квартире произведена замена труб на металлопластик, поставлены фильтры для воды. Металлическая входная дверь, домофон. В комнатах на полу паркет; кухня, прихожая - линолеум (сделана стяжка). Квартира очень теплая.
Мебель остается в качестве бонуса.
Мусоропровод в подъезде по инициативе жильцов не функционирует, значит отсутствует антисанитария.
Район с развитой инфраструктурой, в поселке построен массив современных жилых домов, поэтому достаточно магазинов и других социально-значимых объектов. Имеются школа, почта, поликлиника, библиотека и детский сад - все это в шаговой доступности.
По территории посёлка протекает речка Саморядовка, на которой организован каскад прудов.
В поселке построена церковь Божьей Матери Нечаянная радость.
В собственности более 5 лет. Один взрослый собственник. Быстрый выход на сделку.
Безопасность сделки гарантирована стандартами Гильдии Риэлторов Московской области (ГРМО). Все сделки застрахованы.










































































