Мы используем куки-файлы. Соглашение об использовании
Только на Циан

Продается 1-этажный коттедж, 187 м²

Площадь дома187 м²
Участок9 сот.
Материал домаБлочный
Этажей в доме1
Год постройки2024
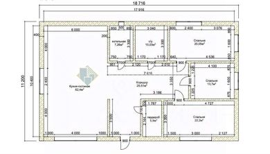
Арт. 112909080 Предновогодняя Акция! Только до Нового года сниженная цена! Очень просторный и стильный дом в г. Дмитров! В черте города, по улице Ревякинский переулок, предлагаем Вашему вниманию дом площадью 187 кв.м. Одноэтажный, построен из газобетонных блоков (60*40) на плитном фундаменте. Крыша металлочерепица. Снаружи декоративная штукатурка Диамант Короед. Внутри стены оштукатурены и готовы к финишной отделке, разведены теплые полы по периметру дома, натянуты потолки (высота потолков 3,5 м), разведено электричество и декоративное освещение. Подведены коммуникации: электричество 15 кВт, вода от скважины (35 метров), канализация септик на 8 персон. Для подведения газа нужно подать заявление. Идеальная планировка дома: коридор 10 кв. м., просторная прихожая - 25,5 кв.м., кухня-гостиная - 62,4 кв.м., котельная, санузел, гардеробная комната, три комнаты (22/20/14кв.м). Благоустроенный участок 9 соток, с декоративными освещёнными дорожками, газоном и беседкой. Огорожен участок профлистом, есть калитка и откатные ворота. В пешей доступности вся инфраструктура г. Дмитров. Приезжайте на просмотр и Вам не захочется покидать этот комфортабельный, уютный дом!
Позвоните автору
Вам ответят на все вопросы

О доме

Площадь

187 м²

Материал дома

Блочный

Количество этажей

1

Количество спален

3

Год постройки

2024

Об участке

Площадь

9 сот.

Статус участка

Индивидуальное жилищное строительство

Коммуникации и удобства

Санузел

1 в доме

Канализация

Есть

Водоснабжение

Скважина

Отопление

Электрическое

Электричество

Есть

Газ

Нет

Спросите умного помощника
Получите экспертное мнение о жилье

Расположение

Подпишитесь на объявления в этой локации
Мы сообщим, как только поблизости появится что‑нибудь новенькое
Ипотечный калькулятор
  • 20.1%
  • 30%
  • 40%
  • 50%
лет
  • 10 лет
  • 20 лет
  • 30 лет
Загружаем предложения от застройщика и банков
Хотите продать недвижимость?Разместите объявление на ЦианРазместить
16 500 000 ₽
Эксперт от ЦианаПомощь с поиском и сделкой
Цена за метр
88 235 ₽/м²
Ипотека
возможна
Агентство недвижимости
Документы проверены
Риелтор